NOP 2nd floor / custom furniture
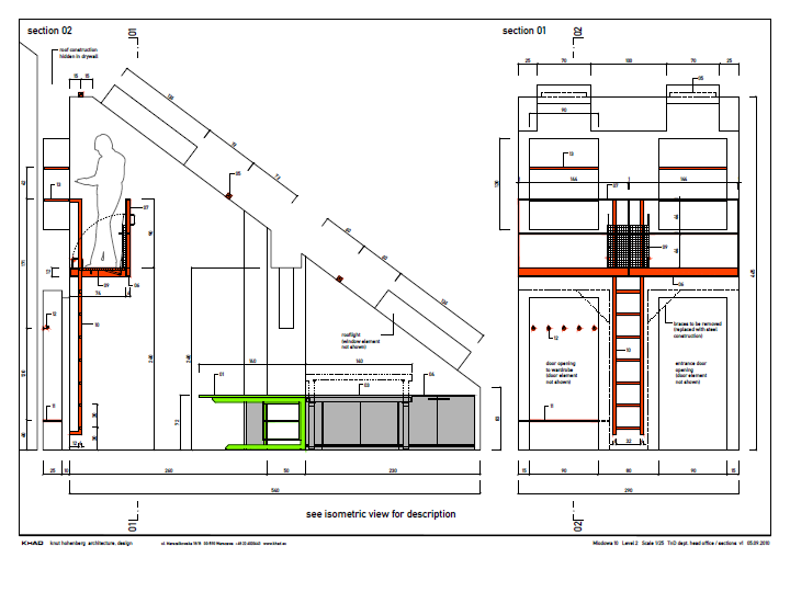
In order to get the most out of the attic's rather problematic spaces for the intended office use, it was decided to equip the 2nd floor of the palace with custom furniture.
The design of the furniture mainly dealt with two issues:
- many of the small rooms suffered from geometric constraints (roof slopes, pillars) that required special solutions
- parts of the attic had been converted to open-plan offices that were met with reservations by the staff
Besides some small bespoke furniture, the design mainly comprised a custom, L-shaped workstation that was meant to offer maximum possible privacy to the staff working in the open-plan spaces.
The furniture went through a public tender and was realized well within the budget of standard items.
Project:
Mlodziejowski Palace
Related to:
NOP 2nd floor / central area
Related to:
NOP 2nd floor / east wing
Related to:
NOP 2nd floor / west wing Groups: